碧南市東山町 中古住宅

2,780万円

愛知県碧南市東山町2丁目12

名鉄三河線「北新川」駅徒歩14分

価格
2,780万円
間取り
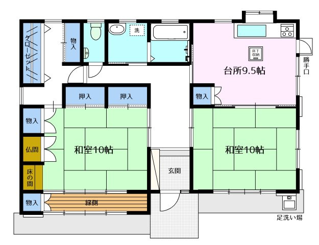
2DK+S(納戸)
土地面積
418.28㎡
所在地
愛知県碧南市東山町2丁目12
交通

名鉄三河線北新川」駅 徒歩14分

建物面積
91.09㎡
築年月
1997年12月(築28年)

セールスポイント

ひろびろ敷地126.52坪 平屋建て

ポイント

押入 南庭 追焚機能浴室 クロゼット 和室

基本情報

販売戸数
-
総戸数
-
間取り / 詳細
2DK+S(納戸)
DK 9.5帖/和室 10.0帖/和室 10.0帖/S 3.5帖/0.0帖/0.0帖/0.0帖/0.0帖/0.0帖/0.0帖
向き
-
建物面積(坪数)
91.09㎡(27.55坪)
土地面積(坪数)
418.28㎡(126.52坪)
建ぺい率 /
容積率
60%/200%
築年月
1997年12月(築28年)
駐車場 / 月額
有 / 0円
土地権利
所有権
土地
(敷金 / 保証金)
0万円 / 0万円
建物構造
木造 / 1階建
傾斜地部分面積
-
路地状敷地
-
私道負担面積
0.00㎡
セットバック
要 0.00㎡
高圧線下面積
0.00㎡
施工会社
-
用途地域
第一種住居
地目 / 地勢
宅地 / その他
接道状況
角地(北西 公道 5.0m 間口 13.4m)(北東 公道 3.3m 間口 22.2m)
国土法届出要否
不要
都市計画
市街化区域
総区画数 /
販売区画数
-/-
現況
空家
その他
法令上の制限
景観法
取引態様
一般媒介
引渡し
2026年2月上旬
取引条件の
有効期限
2026年05月21日

設備条件

設備条件
  • プロパンガス / 公営水道 / 公共下水 / 電気有 / 追焚機能浴室 / 浴室1坪以上 / 床下収納 / 住戸内覧可能
設備(その他)
    下水道供用開始区域ですが、本物件は未接続につき浄化槽を使用しています。

その他

物件番号
94778873
管理コード
-
建築確認番号
-
情報更新日
2026年05月07日
次回更新予定日
2026年05月21日
取扱会社
  • 三幸住宅株式会社
  • 愛知県碧南市石橋町4丁目97 
  • TEL:0800-200-3519
  • 愛知県知事 (12) 第10340号
備考
現況杭渡し
公簿売買
更地にして再建築する場合は北東側はセットバックが必要(約5.3㎡)
売主は瑕疵担保免責
敷地内に電柱あり

周辺施設

  • 新川保育園の画像

    保育園

    新川保育園

    192m(3分)

  • ファミリーマート 碧南東山町店の画像

    コンビニエンスストア

    ファミリーマート 碧南東山町店

    232m(3分)

  • ファミリーマート 碧南鶴見町店の画像

    コンビニエンスストア

    ファミリーマート 碧南鶴見町店

    780m(10分)

  • 愛知県立碧南工科高校の画像

    高校

    愛知県立碧南工科高校

    825m(11分)

  • 羽久手保育園の画像

    保育園

    羽久手保育園

    851m(11分)

  • ファミリーマート 碧南芸文ホール前店の画像

    コンビニエンスストア

    ファミリーマート 碧南芸文ホール前店

    865m(11分)

  • イクタフード平和店の画像

    スーパー

    イクタフード平和店

    960m(12分)

  • ドミー 新川店の画像

    スーパー

    ドミー 新川店

    1007m(13分)

  • 荒子保育園の画像

    保育園

    荒子保育園

    1017m(13分)

  • アオキスーパー 碧南店の画像

    スーパー

    アオキスーパー 碧南店

    1194m(15分)

  • ほっともっと 碧南笹山町店の画像

    弁当

    ほっともっと 碧南笹山町店

    1284m(17分)

  • マクドナルド 碧南店の画像

    ファーストフード

    マクドナルド 碧南店

    1352m(17分)

  • 碧南市役所 ららくるにしばたの画像

    その他

    碧南市役所 ららくるにしばた

    1392m(18分)

  • 札木公園の画像

    公園

    札木公園

    1459m(19分)

  • 碧南市立新川幼稚園の画像

    幼稚園

    碧南市立新川幼稚園

    1467m(19分)

  • 新川中学校の画像

    中学校

    新川中学校

    1495m(19分)

  • スターバックスコーヒー 碧南城山店の画像

    喫茶店・カフェ

    スターバックスコーヒー 碧南城山店

    1555m(20分)

  • 魚魚丸碧南店の画像

    寿司

    魚魚丸碧南店

    1618m(21分)

  • ガスト 碧南店(から好し取扱店)の画像

    ファミリーレストラン

    ガスト 碧南店(から好し取扱店)

    1643m(21分)

  • 新川小学校の画像

    小学校

    新川小学校

    1739m(22分)

支払いシミュレーション

月々の支払額

※実際の金額と異なる場合があります。

購入希望物件価格
万円
頭金
万円
金利
%
返済額(ボーナス1回分)
万円
返済期間

※ボーナスは自動で年2回分で計算されます。

近隣の物件

  1. 碧南市棚尾本町

    碧南市棚尾本町4丁目

    4SLDK (113.04㎡)

    3,180万円

  2. 碧南市川端町

    碧南市川端町1丁目

    4LDK (97.27㎡)

    3,180万円

  3. 碧南市志貴町

    碧南市志貴町3丁目

    3SLDK (99.38㎡)

    2,780万円

  4. 碧南市霞浦町

    碧南市霞浦町2丁目

    4SLDK (111.79㎡)

    3,5995,000

よく見られている物件

  1. 碧南市東山町 中古住宅

    碧南市東山町2丁目

    2DK+S(納戸) (91.09㎡)

    2,780万円

  2. 【中古住宅】碧南市浅間町

    碧南市浅間町5丁目

    4SLK (99.36㎡)

    2,580万円

  3. 【事業用・売り店舗】碧南市新川町

    碧南市新川町2丁目

    4K (225.03㎡)

    3,000万円

  4. 碧南市宮町

    碧南市宮町6丁目

    4LDK+S(納戸) (97.70㎡)

    2,190万円

碧南市東山町 中古住宅

碧南市東山町 中古住宅

2,780万円

-

2DK+S(納戸)(91.09㎡)

お気軽にお問い合わせください

無料お問い合わせ

三幸住宅株式会社

0800-200-3519

9:00~18:00

(休:火曜日・水曜日)